歡迎來到上海毓翔,公司主營產品:直通視鏡,管道視鏡,呼吸人孔,阻爆轟型阻火器
更新:2020-07-17 04:45:27 點擊:195
產品品牌:
產品型號:
產品描述:
售前咨詢:400-8166-958/173-0216-8903
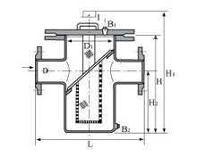
| 直通平底籃式過濾器(SRBI) | 
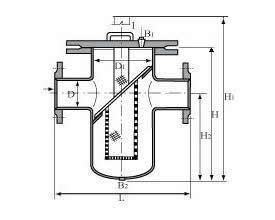
					直通弧底籃式過濾器(SRBII) | |
|  |  |  | 
| DN | D1 | L | H | H1 | H2 | 過濾面積m2 | |
|---|---|---|---|---|---|---|---|
| 25 | 1" | 76 | 180 | 260 | 410 | 160 | 0.0162 | 
| 50 | 2" | 108 | 260 | 300 | 560 | 170 | 0.0315 | 
| 80 | 3" | 159 | 340 | 400 | 719 | 250 | 0.0590 | 
| 100 | 4" | 219 | 400 | 470 | 881 | 300 | 0.1077 | 
| 125 | 5" | 273 | 480 | 550 | 1079 | 360 | 0.1759 | 
| 150 | 6" | 273 | 500 | 630 | 1276 | 420 | 0.2910 | 
| 200 | 8" | 325 | 560 | 780 | 1397 | 530 | 0.4076 | 
| 250 | 10" | 420 | 660 | 930 | 1544 | 640 | 0.5017 | 
| 300 | 12" | 450 | 750 | 1200 | 1739 | 840 | 0.6800 | 
| 型號 Model | SRBI、SRBII | 螺帽螺栓 Bolt/Nut | CS 304 316 316L | 
|---|---|---|---|
| 
					規格  
					Size | 
					DN25~500 HG/T20592 
					PN0.6~5.0 FF、RF | 
					法蘭標準 
					Flanges | HG GB SH HGJ JB ANSI JIS | 
| 
					殼體材質  
					Body Materials | CS 304 316 316L | 
					工作溫度 
					Ambient Temperature | CS:-30~350℃ SS:-80~480℃ | 
| 
					濾芯材質  
					Elment | 304 316 316L | 
					制造檢測標準 
					Manufacture inspection | SH/T3411-2017 HG/T21637-1991 | 
| 
					過濾精度 
					Pore size | 10~300(目/in) | 
					連接形式 
					Jonit type | 
					  法蘭連接 對焊連接 螺紋連接 
					Flange Butt Welding Threaded | 
| 
					密封墊片  
					Gasket Seal | 
					丁腈橡膠 聚四氟乙烯 金屬墊片 
					NBR PTFE Me | 
					外表 
					Coating | CS:Paint SS:No Paint | 
阻爆燃型阻火器的優勢
2024-01-16呼吸人孔的作用
2023-12-07阻爆轟型阻火器的工作原理
2023-11-09選用阻爆燃型阻火器的考慮因素
2023-10-10阻爆燃型阻火器適用的環境
2023-09-06管道視鏡的材料
2023-08-08三種常用的直通視鏡
2023-07-27袋式過濾器的一些使用知識
2023-06-20